TV - Audio - Video - bela tehnika
Re: TV - Audio - Video - bela tehnika
Ja gledam ovaj 43uk6500, smart, 4k koji ki i ne trrba ali eto i dobijas magic remote. Ista je cena kao i kod madjara, a imas 5 godina garancije.
Sent from my SM-G965F koristeći komšijin vajrles.
Sent from my SM-G965F koristeći komšijin vajrles.
Re: TV - Audio - Video - bela tehnika
Kakva su iskustva sa ugradnim frižiderima? Razmišljam da li da uopšte idem na tu priču,Xepoj87 napisao: 05 Okt 2018, 23:17 Ljudi, znam da je vas par ovde uzimalo frizidere u poslednjih par godina.
Hteo bih duzmem ove frizidere, ima li nekih skrivenih mana, nesto sto ne znam i zbog cega bih mozda trebao dizbegnem?
https://www.gigatron.rs/kombinovani_fri ... 6___-74097
Imam u delu kuhinje mesta da stavim samostojeći frižider i stari vertikalni zamrzivač, to je deo koji je zaklonjen i ne vidi se.
Time bi izbegao nepotrebne visoke elemente, ugradna rerna bi došla ispod ploče.
Druga varijanta je ugradni , ali bi verovatno išao na varijantu bez komore, da imam više prostora, a da zadržim i stari zamrzivač. Onda bi u ovaj ugao pored zamrzivača ubacio visoki element za ugradnu rernu.
Ovako nešto sam gledao https://www.bosch-home.rs/popis-proizvo ... /KIR51AF30
Treća varijanta je da izbacim skroz stari zamrzivač i kupim neki samostojeći kao ovi što je kupovao @Xeroj87, ali to baš nema previše smisla. Imam i neki samsung 10 godina star u sadašnjem stanu, mogu i njega da prebacim.
Re: TV - Audio - Video - bela tehnika
Bolje misli o tome zašto se gornji elementi kuhinje otvaraju na gore i ko će to da dohvati i kada 
Re: TV - Audio - Video - bela tehnika
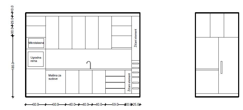
Ovo je moj brzinski render u Kitchen draw programu
, moja lepsa polovina zapela da gornji elementi idu do plafona, videcemo kako će to tačno da uradi arhitekta.
Dala mi je tri varijante, ali je u sve tri ignorisala ideju zadržavanja starog vertikalnog zamrzivača i forsirala ugradni frižider.
Skroz desno je radijator koji treba sakriti.
Dala mi je tri varijante, ali je u sve tri ignorisala ideju zadržavanja starog vertikalnog zamrzivača i forsirala ugradni frižider.
Skroz desno je radijator koji treba sakriti.
Re: TV - Audio - Video - bela tehnika
Treća varijanta , neće da mi dozvoli više attachment-a
Ako mogu admini da spoje sva tri posta.
Ako mogu admini da spoje sva tri posta.
- Prikačeni fajlovi
-
- Varijanta1.JPG (26.53 KiB) Pogledano 2562 puta
Re: TV - Audio - Video - bela tehnika
Kada smo supruga i ja pravili kuhinju pre 10ak god, stavili smo samostojeci kombinovani frizider, koji smo nakon 5 god zamenili jos boljim.
Licno ne bih isao na ugradni (mada su u DE izuzetno popularni), vec na neki odlican samostalni, sa dosta mesta i u frizu i u glavnom delu. I ako treba da se popravi/zameni, lakse je naci novi posle.
Elemente nismo ugradjivali do vrha, ali sada da biram, isao bih do plafona, veca iskoriscenost prostora.
Licno ne bih isao na ugradni (mada su u DE izuzetno popularni), vec na neki odlican samostalni, sa dosta mesta i u frizu i u glavnom delu. I ako treba da se popravi/zameni, lakse je naci novi posle.
Elemente nismo ugradjivali do vrha, ali sada da biram, isao bih do plafona, veca iskoriscenost prostora.
Re: TV - Audio - Video - bela tehnika
Elementi uvek ako mogu do plafona, vise prostora i nema skupljanja prasine.
Re: TV - Audio - Video - bela tehnika
Da ali vizuelno smanjuje visinu sobe
Prema tome nije bas uvek....
- Vladapetr
- Postovi: 9821
- Pridružio se: 26 Jan 2013, 10:50
- Garaža: Skoda Kodiaq 2.0 TDI L&K / Jeep Compass 1.3 DDCT
- Lokacija: Beograd
Re: TV - Audio - Video - bela tehnika
Jel ima neko ideju gde bih mogao da kupim posudu, tj njen poklopac za Siemens multipraktik secko mk50800? Imamo ga neke 4 godine, gospođa je odmah na početku slomila zub na poklopcu koji služi za aktiviranje uređaja. Zalepi se pa drži par meseci, onda opet otpadne, i tako u krug. Bacili smo kutiju pa ne znam ko je uvoznik, zvao bi da ih pitam direktno.
There are 10 kinds of people in the world:
those who understand binary and others who don't.
those who understand binary and others who don't.
- kragujevac
- Postovi: 3537
- Pridružio se: 16 Jul 2016, 08:46
- Garaža: Jaguar XF 4.2 V8 (NA)
- Lokacija: Minhen/BRD
Re: TV - Audio - Video - bela tehnika
Ako imaš nekoga da ti donese iz D.
https://www.ersatzteilblitz.de/shop/sho ... eid=533519
Prilično skupo parčence plastike.
https://www.ersatzteilblitz.de/shop/sho ... eid=533519
Prilično skupo parčence plastike.
Za bolesnike postoji bolnica, za ludake ludnica. Samo za budale nema ništa, zato ih se toliko i nakotilo.
Ljuba Moljac
Ljuba Moljac
- Vladapetr
- Postovi: 9821
- Pridružio se: 26 Jan 2013, 10:50
- Garaža: Skoda Kodiaq 2.0 TDI L&K / Jeep Compass 1.3 DDCT
- Lokacija: Beograd
Re: TV - Audio - Video - bela tehnika
Dankešen
ako ne nadjem ovde, poručiću.
There are 10 kinds of people in the world:
those who understand binary and others who don't.
those who understand binary and others who don't.
- kragujevac
- Postovi: 3537
- Pridružio se: 16 Jul 2016, 08:46
- Garaža: Jaguar XF 4.2 V8 (NA)
- Lokacija: Minhen/BRD
Re: TV - Audio - Video - bela tehnika
Imaš i Siemens kontakt telefon u BG:
https://www.siemens-home.bsh-group.com/rs/kontakt
https://www.siemens-home.bsh-group.com/rs/kontakt
Za bolesnike postoji bolnica, za ludake ludnica. Samo za budale nema ništa, zato ih se toliko i nakotilo.
Ljuba Moljac
Ljuba Moljac
Re: TV - Audio - Video - bela tehnika
Cijena vrv sitnica...
