Stranica 451 od 660
Re: TV - Audio - Video - bela tehnika
Poslato: 07 Okt 2018, 15:00
od sebekkg
Ja gledam ovaj 43uk6500, smart, 4k koji ki i ne trrba ali eto i dobijas magic remote. Ista je cena kao i kod madjara, a imas 5 godina garancije.
Sent from my SM-G965F koristeći komšijin vajrles.
Re: TV - Audio - Video - bela tehnika
Poslato: 08 Okt 2018, 09:08
od jocas
Kakva su iskustva sa ugradnim frižiderima? Razmišljam da li da uopšte idem na tu priču,
Imam u delu kuhinje mesta da stavim samostojeći frižider i stari vertikalni zamrzivač, to je deo koji je zaklonjen i ne vidi se.
Time bi izbegao nepotrebne visoke elemente, ugradna rerna bi došla ispod ploče.
Druga varijanta je ugradni , ali bi verovatno išao na varijantu bez komore, da imam više prostora, a da zadržim i stari zamrzivač. Onda bi u ovaj ugao pored zamrzivača ubacio visoki element za ugradnu rernu.
Ovako nešto sam gledao
https://www.bosch-home.rs/popis-proizvo ... /KIR51AF30
Treća varijanta je da izbacim skroz stari zamrzivač i kupim neki samostojeći kao ovi što je kupovao @Xeroj87, ali to baš nema previše smisla. Imam i neki samsung 10 godina star u sadašnjem stanu, mogu i njega da prebacim.
Re: TV - Audio - Video - bela tehnika
Poslato: 08 Okt 2018, 12:50
od Heinz
Bolje misli o tome zašto se gornji elementi kuhinje otvaraju na gore i ko će to da dohvati i kada

Re: TV - Audio - Video - bela tehnika
Poslato: 08 Okt 2018, 13:01
od jocas
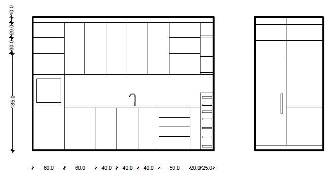
Ovo je moj brzinski render u Kitchen draw programu

, moja lepsa polovina zapela da gornji elementi idu do plafona, videcemo kako će to tačno da uradi arhitekta.
Dala mi je tri varijante, ali je u sve tri ignorisala ideju zadržavanja starog vertikalnog zamrzivača i forsirala ugradni frižider.
Skroz desno je radijator koji treba sakriti.

- Varijanta3.JPG (18.93 KiB) Pogledano 2566 puta
Prikačeni fajl Varijanta2.JPG više nije dostupan
Prikačeni fajl Varijanta3.JPG više nije dostupan
Re: TV - Audio - Video - bela tehnika
Poslato: 08 Okt 2018, 13:06
od jocas
Druga varijanta
Re: TV - Audio - Video - bela tehnika
Poslato: 08 Okt 2018, 13:06
od jocas
Treća varijanta , neće da mi dozvoli više attachment-a
Ako mogu admini da spoje sva tri posta.
Re: TV - Audio - Video - bela tehnika
Poslato: 08 Okt 2018, 13:33
od ikac2000
Kada smo supruga i ja pravili kuhinju pre 10ak god, stavili smo samostojeci kombinovani frizider, koji smo nakon 5 god zamenili jos boljim.
Licno ne bih isao na ugradni (mada su u DE izuzetno popularni), vec na neki odlican samostalni, sa dosta mesta i u frizu i u glavnom delu. I ako treba da se popravi/zameni, lakse je naci novi posle.
Elemente nismo ugradjivali do vrha, ali sada da biram, isao bih do plafona, veca iskoriscenost prostora.
Re: TV - Audio - Video - bela tehnika
Poslato: 08 Okt 2018, 14:03
od Ralee
Elementi uvek ako mogu do plafona, vise prostora i nema skupljanja prasine.
Re: TV - Audio - Video - bela tehnika
Poslato: 08 Okt 2018, 14:28
od ljuba
Da ali vizuelno smanjuje visinu sobe

Prema tome nije bas uvek....
Re: TV - Audio - Video - bela tehnika
Poslato: 17 Okt 2018, 13:20
od Vladapetr
Jel ima neko ideju gde bih mogao da kupim posudu, tj njen poklopac za Siemens multipraktik secko mk50800? Imamo ga neke 4 godine, gospođa je odmah na početku slomila zub na poklopcu koji služi za aktiviranje uređaja. Zalepi se pa drži par meseci, onda opet otpadne, i tako u krug. Bacili smo kutiju pa ne znam ko je uvoznik, zvao bi da ih pitam direktno.
Re: TV - Audio - Video - bela tehnika
Poslato: 17 Okt 2018, 14:49
od kragujevac
Ako imaš nekoga da ti donese iz D.
https://www.ersatzteilblitz.de/shop/sho ... eid=533519
Prilično skupo parčence plastike.
Re: TV - Audio - Video - bela tehnika
Poslato: 17 Okt 2018, 15:40
od Vladapetr
Dankešen

ako ne nadjem ovde, poručiću.
Re: TV - Audio - Video - bela tehnika
Poslato: 17 Okt 2018, 15:43
od kragujevac
Re: TV - Audio - Video - bela tehnika
Poslato: 17 Okt 2018, 17:45
od pedja
Re: TV - Audio - Video - bela tehnika
Poslato: 17 Okt 2018, 18:12
od jaksa
Cijena vrv sitnica...